En Venta

Consultar Precio

Local
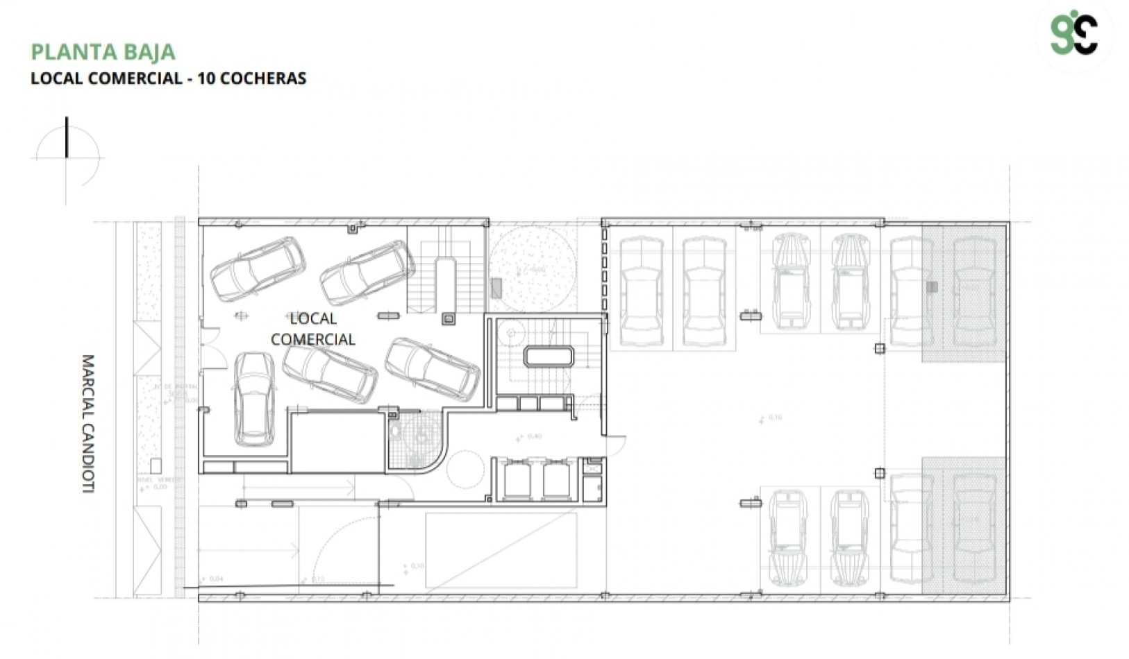
LOCAL/SALON COMERCIAL EN BARRIO CANDIOTI
Código: 172827

Marcial Candioti 3068, S3000GFK Santa Fe de la Vera Cruz, Santa Fe, Argentina, Santa Fe, Santa Fe, Argentina.

Compartir esta Propiedad

Descripción de la Propiedad

Este emprendimiento se encuentra ubicado en calle Marcial Candioti 3068, en pleno corazón de Barrio Candioti Sur. A pocos minutos de Bv. Gálvez, Avenida Alem y la Peatonal San Martín, lo que le otorga una conexión directa con el centro comercial. Cuenta con 10 pisos aterrazados que incluyen 10 departamentos de 1 dormitorio, 10 de 2 dormitorios, 4 de 3 dormitorios, salón comercial, oficinas, sector de bicicletero y cocheras. La terraza está equipada con SUM, asador, piscina y solárium. Este local/salón posee 99,18m2 cubiertos con unidad sanitaria. El edificio y los departamentos son de calidad premium y se entregan con terminaciones de alta calidad, aberturas DVH o TVH, pisos de porcelanato, seguridad monitorizada, cámaras y cerraduras electrónicas, mobiliario de cocina completo, cortinados incluidos, equipos de aire acondicionado frío - calor, grifería y sanitarios Pacific Trading, muebles de placard embutidos y paneles solares. FORMA DE PAGO: CONTADO ó Entrega y cuotas mensuales.

Mas detalles
  • En construcción
  • Apto profesional
  • Cerca de Escuelas
  • Alumbrado publico
  • Asfalto
  • Agua Corriente
  • Cloacas
  • Electricidad
  • Tendido Eléctrico
Ubicación